DER WERTRECHNER VON IMMOARCHITEKTEN
WERTRECHNER IMMOBILIE
Immobilienbewertung aus über 9 Milliarden Objektinformationen, 10 Millionen Angebotspreisen, 17 Millionen Angebotsmieten und mehr als
2 Millionen Kaufpreisen.
Erfahren Sie jetzt, welche Wertsteigerungen Ihr Eigentum bietet.
Wir prüfen alle Potenziale nach den neuesten gesetzlichen Möglichkeiten und ermitteln Ihren optimalen Verkaufspreis: deutschlandweit, transparent und kostenfrei.
Auf "Immobilie jetzt bewerten" klicken –
sofort kostenloses Ergebnis erhalten.
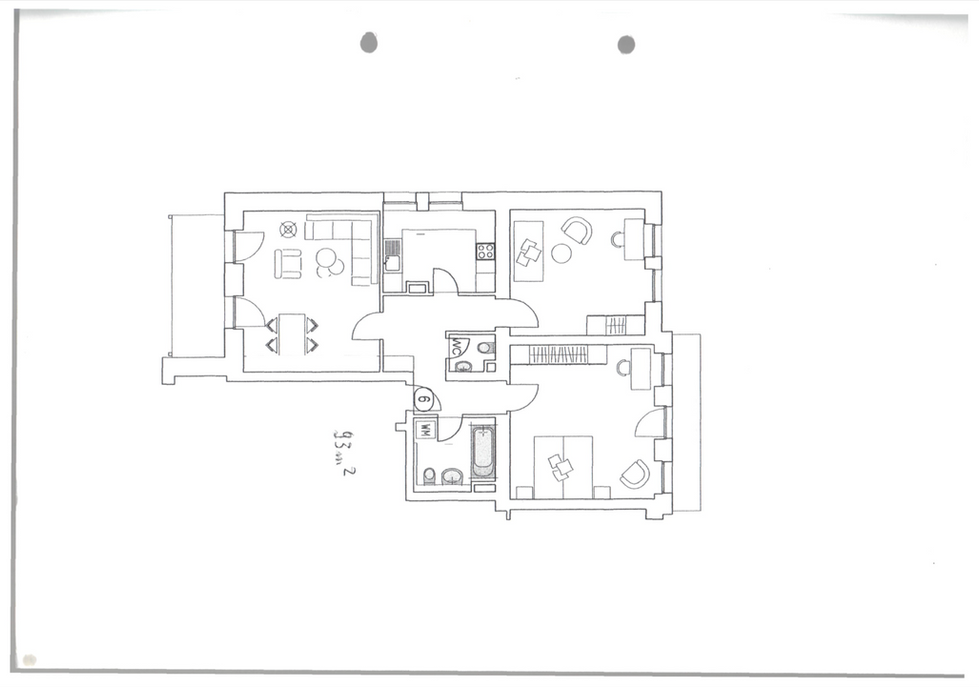
Fehlt unser Grundriss, fällt Ihr Preis – wir heben ihn
Strich für Strich.

Verkauf ohne Makler –
wir machen Ihren Privatverkauf erfolgreicher.
-
Sie verkaufen privat und wollen, dass Ihre Käufer zügig eine Finanzierungszusage erhalten?
-
Wir liefern Ihnen moderne Architekten-Grundrisse und verkaufsstarke Unterlagen, mit denen Ihre Anzeige exklusiv heraussticht.
-
So verhandeln Sie souverän, schaffen Vertrauen und holen mehr aus Ihrem Verkauf heraus.
-
Grundriss 1–2‑Zimmer‑Wohnung: 400 €
-
Grundriss 3‑Zimmer‑Wohnung: 450 €
-
Grundriss 4‑Zimmer‑Wohnung: 500 €
-
Grundriss 5‑Zimmer‑Wohnung: 550 €
-
Einfamilienhaus/Doppelhaushälfte/Reihenhaus & Mehrfamilienhaus: auf Anfrage
-
Optional: Komplettes Verkaufs-Exposé für Privatverkäufer (Text, Layout, Bildauswahl, Visualisierungen) – pauschal 1.190 € inkl. MwSt., zuzüglich Grundrisspreis.
Vorher: Standard-Grundriss – wertmindernd und verkaufshemmend
Nachher: Architektengrundriss – wertsteigernd und verkaufsstark, M 1:50
Nachher: Architektengrundriss – wertsteigernd und verkaufsstark, M 1:100
Guter Plan, guter Preis – wir liefern beides.
Wert ermittelt?
Jetzt mit uns verkaufen –
wir sorgen für Andrang.

Verkauf mit Makler –
mehr Käufer, besserer Preis, weniger Stress.
-
Sie möchten Ihre Immobilie mit einem Makler verkaufen?
-
Wir kümmern uns um alles: Zielgruppenansprache, Exposé, Besichtigungen und Preisverhandlung.
-
Mit Marktkenntnis und klarem Verkaufsplan erzielen Sie schnell einen optimalen Verkaufspreis.
-
Wir arbeiten ausschließlich auf Erfolgsbasis mit einer fairen Verkäuferprovision ab 2% des Kaufpreises netto (zzgl. MwSt.).
Professionelle Grundrisse, ein starkes Exposé und nötige Wohnflächenberechnungen sind bei Maklerbeauftragung bereits im Honorar enthalten.
Inklusive Grundrisse &
Exposé-Erstellung
Wohnfläche weg?
Wir holen sie zurück – Millimeter für Millimeter.

Wohnflächenberechnung –
neue Wohnflächenberechnung rechtssicher nach WoFlV – für Verkauf, Vermietung und Finanzierung.
-
Wir erstellen für Ihre Immobilie eine präzise Wohnflächenberechnung nach WoFlV – anerkannt von Banken, Käufern und Notaren.
-
Damit untermauern Sie Ihren Angebotspreis, vermeiden Streitigkeiten und schaffen Vertrauen vom ersten Exposé an.
-
1–2‑Zimmer‑Wohnung: 500 €
-
3‑Zimmer‑Wohnung: 750 €
-
4‑Zimmer‑Wohnung: 850 €
-
5‑Zimmer‑Wohnung: 950 €
-
Einfamilienhaus/Doppelhaushälfte/Reihenhaus & Mehrfamilienhaus: auf Anfrage
-
zzgl. Fahrtkostenpauschale je nach Objektlage.
Präzision, die sich bezahlt macht – für
Verkauf, Finanzierung und Vermietung.
WERTRECHNER IMMOBILIE -
WIE VIEL IST IHRE IMMOBILIE WERT?
Wer mit dem Wertrechner Immobilie den Immobilienwert ermitteln oder den Immobilienwert online berechnen möchte, erhält mit unserer Immobilienbewertung eine schnelle und fundierte Ersteinschätzung. Erfahren Sie jetzt, welche Wertsteigerungen Ihr Eigentum bietet. Wir prüfen alle Potenziale nach den neuesten gesetzlichen Möglichkeiten und ermitteln Ihren optimalen Verkaufspreis – transparent, rechtssicher und kostenfrei. Ihr Vorteil als Eigentümer:- Kostenlose Erstbewertung- Zusatzanalyse nach § 246e BauGB - Expertenberatung zu Bebauungs- und Nutzungsmöglichkeiten- Persönliche, rechtssichere Preisermittlung. Sie möchten wissen, wie Sie den besten Preis erzielen? Klicken Sie oben auf „Immobilie jetzt bewerten“, erhalten Sie Ihre kostenlose Erstbewertung und im Nachgang exklusive Wertsteigerungstipps. Profitieren Sie von Erfahrung, lokaler Marktexpertise und individuellen Lösungen – exklusiv für Eigentümer!
Datenbasis, auf der wir Ihren Immobilienwert ermitteln

Objektinformationen
9
Milliarden Objektinformationen aus ganz Deutschland

Angebotspreise
10
Millionen
aktuelle Angebotspreise für Wohnungen und Häuser

Angebotsmieten
17 Millionen Angebotsmieten für Wohn‑ und Gewerbeimmobilien

Kaufpreise
2
Millionen
tatsächlich erzielte Kaufpreise aus Verkäufen
Eingetragene Architekten – Mitglieder der Architektenkammer:
Fachkundige Bewertung Ihrer Immobilie auf Basis unseres Online‑Wertrechners.
JETZT DEN IMMOBILIENWERT KOSTENLOS BERECHNEN -
MIT WERTRECHNER IMMOBILIE IN NUR WENIGEN MINUTEN
Sie möchten wissen, was Ihr Haus oder Ihre Wohnung aktuell wert ist? Mit dem Wertrechner Immobilie finden Eigentümer:innen in ganz Deutschland schnell und unverbindlich heraus, welchen Preis ihre Immobilie heute am Markt erzielen kann.
Einfach die wichtigsten Eckdaten wie Lage, Haustyp, Wohnfläche und Baujahr eingeben – und schon verknüpft unser Wertrechner Haus Ihre Angaben mit aktuellen Vergleichsangeboten, Marktstatistiken und Verkaufstrends. Innerhalb weniger Minuten erhalten Sie eine realistische Preisspanne direkt auf den Bildschirm. Ideal, um den Immobilienwert online zu berechnen und die nächsten Schritte beim Verkauf gezielt zu planen.
Wer seine Immobilie verkaufen, vererben oder beleihen möchte, startet mit der kostenlosen Online‑Bewertung – bequem von zuhause und völlig risikofrei.
WARUM EINE PROFESSIONELLE BEWERTUNG
VOR DEM VERKAUF WICHTIG IST
Ein realistischer Immobilienwert ist die Grundlage für eine erfolgreiche Vermarktung. Der Wertrechner Immobilie & Wertrechner Haus hilft Ihnen, den Marktpreis richtig einzuschätzen und Ihre Preisstrategie optimal festzulegen.
Wer den Preis zu hoch ansetzt, riskiert lange Vermarktungszeiten und wiederholte Preisreduzierungen. Ein zu niedriger Preis führt dagegen zu unnötigen Verlusten. Eine fundierte Hausbewertung oder Wohnungsbewertung sorgt dafür, dass Sie von Anfang an mit marktgerechten Zahlen arbeiten und souverän verhandeln können.
Mit einer nachvollziehbaren Wertermittlung schaffen Sie Transparenz gegenüber Kaufinteressenten, Banken oder Miterben und stärken Ihre Verhandlungsposition. In unserem Ratgeber finden Sie außerdem viele Informationen darüber, wie sich der Immobilienwert berechnen lässt und welche Faktoren den Marktpreis beeinflussen.
DAMIT KÄUFER SICH VERLIEBEN –
PROFESSIONELLE GRUNDRISSE FÜR DEN ERSTEN EINDRUCK.

ERHÖHEN SIE IHREN MARKTWERT UM BIS ZU 20% –
MIT UNSEREN ARCHITEKTEN-GRUNDRISSEN!
HEUTE IMMOBILIENWERT ERMITTELN UND BIS ZU 20% MEHRWERT SICHERN!

„Durch den professionell überarbeiteten Wohnungsgrundriss wurde das versteckte Potential meiner Wohnung erst richtig sichtbar – die Räume wirken nicht nur deutlich großzügiger, sondern die Marktwert-Wahrnehmung hat sich spürbar verbessert.“
Herr H., Eigentümer einer Eigentumswohnung,
Nordrhein-Westfalen

„Durch die zusätzliche Begutachtung und die anschließende Projektplanung entstand nicht nur eine architektonische Aufwertung – sondern auch eine für mich völlig unerwartet hohe Wertsteigerung meines Grundstücks.“
Herr K., privater Immobilieninvestor,
Bayern
Sie brauchen als Privatverkäufer nur Grundrisse?
Fordern Sie jetzt Ihren exklusiven Architekten-Plan an – steigern Sie den Marktwert ohne Maklerkosten!
Makler gesucht?
Unsere Grundrisse machen Ihre Exposés unschlagbar – bis 20% höherer Verhandlungserfolg durch professionelle Vermarktung.
Sie überlegen noch und wollen später verkaufen?
Kein Problem. Ermitteln Sie zunächst kostenlos Ihren Immobilienwert – und sichern Sie sich später eine premium Marktwerterhöhung
mit unseren Architekten-Grundrissen!
STEIGERN SIE DEN VERKAUFSERFOLG IHRER IMMOBILIE –
MIT PROFESSIONELLEM VIRTUELLEN HOME STAGING!
HEUTE IMMOBILIENWERT ERMITTELN UND MORGEN KÄUFER BEGEISTERN
Privat inserieren kann jeder –
aber nur finanzierbare Immobilien werden gekauft
Schlechte oder unvollständige Unterlagen drücken den Beleihungswert und gefährden die Finanzierungszusage. Banken erwarten bemaßte Architekten-Grundrisse, geprüfte Wohnflächenberechnungen und ein aussagekräftiges Exposé. Als eingetragene Architekten bereiten wir Ihre Immobilie bankenfähig aus einer Hand auf – inklusive Grundriss, Wohnfläche und Exposé, damit sich der Verkauf mit Profi-Unterstützung wirklich auszahlt.

Genaue Wohnfläche & Grundriss
Exakte Architekten-Grundrisse und Wohnflächenberechnung – bankenfähig und rechtssicher.

Objektzustand
Professionelle Dokumentation von Bauzustand und Modernisierungen für einen besseren Beleihungswert.

Lage & Chancen
Klare Darstellung von Lage, Vermietbarkeit und Nachfrage – wichtig für die Bankentscheidung.

Vollständige Unterlagen
Bankenfertiges Exposé mit allen Plänen, Flächen, Fotos und Kennzahlen aus einer Hand.
WARUM SIE IHREN IMMOBILIENWERT KENNEN SOLLTEN
Ein marktgerechter Preis ist der Schlüssel zu einem erfolgreichen Verkauf. Der Wertrechner Immobilie zeigt Ihnen, was Ihre Immobilie wirklich wert ist – bevor Sie mit Maklern, Käufern oder Banken verhandeln.
-
Zu hoch angesetzt? Ihre Immobilie bleibt lange am Markt.
-
Zu niedrig angesetzt? Sie verlieren bares Geld.
Mit einer fundierten Einschätzung durch den Wertrechner Haus vermeiden Sie beides. Sie starten gleich mit einer realistischen Preisstrategie und schaffen damit die perfekte Basis für Ihren Immobilienverkauf – schnell, sicher und ohne Stress.
Wer seine Preisvorstellung kennt, kann selbstbewusst auftreten, Interessenten überzeugen und besser verhandeln. Nutzen Sie den Online‑Vorteil und finden Sie jetzt heraus, was Ihre Immobilie wirklich wert ist.
SO FUNKTIONIERT WERTRECHNER IMMOBILIE
-
Daten eingeben – Objektart, Wohnfläche und Lage angeben.
-
Marktdaten vergleichen – der Wertrechner Immobilie gleicht Ihre Angaben mit aktuellen Kaufpreisen ähnlicher Immobilien in Deutschland ab.
-
Ergebnis erhalten – in wenigen Minuten wissen Sie, wie viel Ihr Haus oder Ihre Wohnung aktuell wert ist.
Das Ergebnis dient als solide Orientierung, um den Verkauf vorzubereiten oder eine persönliche Bewertung durch geprüfte Experten ergänzen zu lassen. So kombinieren Sie moderne Online‑Technologie mit fachlicher Immobilienbewertung.
ONLINE-WERTRECHNER ODER PERSÖNLICHE BEWERTUNG
Wenn Sie einfach nur einen schnellen Überblick wollen, ist der Wertrechner Immobilie perfekt. Er liefert sofort eine präzise erste Einschätzung – kostenlos, anonym und unverbindlich.
Wer den nächsten Schritt plant, sollte die Online‑Bewertung mit einer persönlichen Expertise kombinieren. Unsere Partner‑Gutachter prüfen Zustand, Ausstattung und Modernisierungen vor Ort und erstellen eine fundierte Marktwertanalyse – ideal, wenn Sie Ihre Immobilie tatsächlich verkaufen oder neu finanzieren möchten.
WANN LOHNT SICH DIE IMMOBILIENBEWERTUNG?
Eine Immobilienbewertung online lohnt sich immer, wenn Sie:
-
über einen Verkauf oder eine Vermietung nachdenken,
-
eine Erbschaft oder Scheidung regeln müssen,
-
oder mit der Bank über Finanzierung und Vermögensplanung sprechen.
Mit dem Wertrechner Haus erzielen Sie Klarheit, Sicherheit und Transparenz. Sie kennen den echten Marktwert, bevor Sie Entscheidungen treffen, und vermeiden finanzielle Überraschungen.
Je besser Ihre Vorbereitung, desto schneller und lukrativer können Sie verkaufen – und genau dafür ist Wertrechner Immobilie & Wertrechner Haus gemacht.
HÄUFIGE FRAGEN ZUR ONLINE-IMMOBILIENBEWERTUNG (FAQ)
Ist der Wertrechner Immobilie wirklich kostenlos?
Ja, die Online-Immobilienbewertung über Wertrechner.immobilien ist zu 100 % kostenlos und unverbindlich. Sie können jederzeit Ihren Immobilienwert ermitteln, ohne Kosten oder Verpflichtungen – ideal zur Vorbereitung auf Verkauf oder Finanzierung.
Wie schnell erhalte ich mein Bewertungsergebnis?
Das Ergebnis wird sofort berechnet. Nach Eingabe der wichtigsten Objektdaten (z. B. Wohnfläche, Baujahr, Lage) können Sie in nur wenigen Minuten online Ihren Immobilienwert ermitteln.
Wie genau ist die Online-Immobilienbewertung?
Der Wertrechner nutzt aktuelle Vergleichsdaten, Bodenrichtwerte und Marktanalysen. So erhalten Sie eine fundierte Einschätzung, wenn Sie Ihren Immobilienwert online ermitteln. Für eine bankenfeste Bewertung empfehlen wir eine ergänzende Expertenanalyse.
Welche Unterlagen benötige ich für eine genaue Bewertung?
Grundrisse, Wohnflächenberechnung, Energieausweis, Modernisierungsnachweise oder ein Grundbuchauszug helfen, den Immobilienwert präziser zu ermitteln. Fehlende Dokumente können durch unsere Partnerfachleute ergänzt werden.
Was ist der Unterschied zwischen Marktwert und Beleihungswert?
Der Marktwert beschreibt den wahrscheinlichen Verkaufspreis, wenn Sie den Immobilienwert ermitteln. Der Beleihungswert hingegen dient Banken zur Ermittlung der Finanzierungshöhe und liegt meist unter dem Marktwert.
Kann ich den ermittelten Wert für eine Finanzierung verwenden?
Ja. Mit dem Online-Ergebnis können Sie Ihren Immobilienwert ermitteln und als Grundlage in Finanzierungsgesprächen nutzen. Für eine bandentaugliche Finanzierungszusage benötigen Banken jedoch zusätzlich eine Beleihungswertermittlung.
Was bedeutet „bandenfertiges Exposé“?
Ein bandenfertiges Exposé umfasst alle Daten, die Banken für eine Kreditentscheidung benötigen – Bauzustand, Lage, Energieeffizienz sowie den zuvor ermittelten Immobilienwert. Auf Wunsch erstellen wir ein solches Exposé automatisch aus Ihrer Bewertung.
Wie kann der ermittelte Wert beim Verkauf helfen?
Wenn Sie Ihren Immobilienwert online ermitteln, erkennen Sie den realistischen Marktwert. Das stärkt Ihre Verhandlungsposition und erleichtert die Preisfindung – Käufer und Banken vertrauen auf diese fundierte Berechnungsbasis.
Sind die Ergebnisse auch für Eigentumswohnungen relevant?
Ja, Sie können für jede Immobilienart – Haus, Wohnung oder Mehrfamilienhaus – schnell und kostenlos Ihren Immobilienwert ermitteln.
Wie fließt die aktuelle Marktlage in die Bewertung ein?
Der Wertrechner berücksichtigt aktuelle Marktdaten, regionale Vergleichswerte und Zinsentwicklung, damit Sie stets einen realistischen Immobilienwert ermitteln können, der sowohl für Verkauf als auch Finanzierung geeignet ist.
Welche Unterlagen benötige ich für eine genaue Bewertung?
Grundrisse, Wohnflächenberechnung, Energieausweis, Modernisierungsnachweise oder ein Grundbuchauszug helfen, den Immobilienwert präziser zu ermitteln. Fehlende Dokumente können durch unsere Partnerfachleute ergänzt werden.
Kann ich den ermittelten Wert für eine Anschlussfinanzierung nutzen?
Ja, insbesondere bei Anschlussfinanzierungen hilft es, den Immobilienwert neu zu ermitteln, um gegenüber der Bank aktuelle Werte und Potenziale vorlegen zu können.
Wie sicher sind meine Daten bei der Online-Bewertung?
Ihre Eingaben zum Immobilienwert ermitteln werden DSGVO-konform verarbeitet und nicht an Dritte weitergegeben. Datenschutz und Datensicherheit haben höchste Priorität.
Welche Faktoren beeinflussen den Immobilienwert am stärksten?
Lage, Baujahr, Ausstattung, Energieeffizienz und Infrastruktur sind Schlüsselfaktoren, wenn Sie den Immobilienwert ermitteln. Banken achten zudem auf Objektzustand, Beleihbarkeit und Nachhaltigkeit.
Kann ich mehrere Immobilien gleichzeitig bewerten?
Ja, Sie können für mehrere Objekte gleichzeitig den Immobilienwert ermitteln – das ist besonders sinnvoll, wenn Sie Ihr Portfolio oder verschiedene Standorte vergleichen möchten.
Was bringt mir eine professionelle Bewertung zusätzlich?
Eine persönliche Begutachtung durch einen Sachverständigen liefert einen bankentauglichen Beleihungswert, der über die reine Online-Bewertung hinausgeht und bei Kauf, Erbschaft oder Finanzierung verbindlich verwendet werden kann.
JETZT STARTEN UND IMMOBILIENWERT ONLINE BERECHNEN
Erfahren Sie in wenigen Minuten, was Ihr Objekt wirklich wert ist – kostenlos, sicher und unverbindlich.
Der einfachste Weg zu einer fundierten Immobilienbewertung online – und zum erfolgreichen Verkauf Ihrer Immobilie.
Starten Sie jetzt Ihre Online‑Bewertung:
BLOG






GALERIE Wertrechner Haus


WERTRECHNER
IMMOBILIE
Immobilienwert ermitteln
Erfahren Sie jetzt, welche Wertsteigerungen Ihr Eigentum bietet. Wir von IMMOARCHITEKTEN prüfen alle Potenziale nach den neuesten gesetzlichen Möglichkeiten und ermitteln Ihren optimalen Verkaufspreis – transparent, rechtssicher und kostenfrei.
Ihr Vorteil als Eigentümer:
- Kostenlose Erstbewertung
- Zusatzanalyse nach § 246e BauGB
- Expertenberatung zu Bebauungs- und
Nutzungsmöglichkeiten
- Persönliche, rechtssichere Preisermittlung
Sie möchten wissen, wie Sie den besten Preis erzielen?
Klicken Sie oben auf „Immobilie jetzt bewerten“, erhalten Sie Ihre kostenlose Erstbewertung und im Nachgang exklusive Wertsteigerungstipps. Profitieren Sie von Erfahrung, lokaler Marktexpertise und individuellen Lösungen – exklusiv für Eigentümer!
IMMOBILIENWERT ERMITTELN WERTRECHNER IMMOBILIE
Anerkannte Verfahren
Wer den Wert einer Immobilie ermitteln möchte, profitiert von klaren Bewertungsgrundlagen: In Deutschland gibt die Immobilienwertermittlungsverordnung (ImmoWertV) die drei anerkannten Verfahren vor – Sachwert-, Vergleichswert- und Ertragswertverfahren. Diese Methoden sorgen für eine marktgerechte, transparente und rechtssichere Wertermittlung – die Basis für einen erfolgreichen Immobilienverkauf.
SACHWERTVERFAHREN
Substanzwert
Immobilienwert berechnen: Das Verfahren basiert auf der Ermittlung des Bodenwerts sowie der aktuellen Herstellungskosten aller baulichen Anlagen – einschließlich Außenanlagen und technischer Ausstattungen. Nach detaillierter Bestandsaufnahme durch einen Sachverständigen werden die Gebäudekosten bezogen auf heutige Baupreise berechnet und um die Alterswertminderung, also die Abnutzung und den Zustand der Gebäude, reduziert. Die Summe aus Bodenwert und Gebäudesachwert bildet den vorläufigen Sachwert. Im letzten Schritt folgt die Marktanpassung: Der vorläufige Sachwert wird mit Hilfe eines regionalen Sachwertfaktors und unter Berücksichtigung objektspezifischer Merkmale (u.a. Modernisierungen, besondere Rechte, Altlasten) an die aktuelle Marktsituation angepasst. Das Sachwertverfahren bietet Eigentümern eine nachvollziehbare, transparente und rechtssichere Bewertungsgrundlage, insbesondere für Finanzierungsfragen, steuerliche Zwecke oder die sachliche Positionierung gegenüber Kaufinteressenten und Kreditinstituten. Die präzise Erfassung aller relevanten Daten und die unabhängige Bewertung durch einen qualifizierten Sachverständigen gewährleisten eine verlässliche Entscheidungs- und Argumentationsbasis rund um die Immobilie.
VERGLEICHSWERTVERFAHREN
Kaufpreissammlung
Immobilienwertrechner: Das Vergleichswertverfahren ist eine marktbasierte Methode zur Immobilienbewertung, bei der der Wert einer Immobilie aus den realen Verkaufspreisen ähnlicher Objekte abgeleitet wird. Grundlagen des Vergleichswertverfahrens Das Verfahren basiert auf der Annahme, dass eine Immobilie so viel wert ist, wie andere Käufer bereit waren für vergleichbare Immobilien zu zahlen. Dazu werden möglichst viele aktuelle Daten aus Kaufpreissammlungen und Verkaufsfällen herangezogen, die hinsichtlich Lage, Größe, Zustand und Nutzung mit dem Bewertungsobjekt übereinstimmen. Ablauf und Merkmale Auswahl geeigneter Vergleichsobjekte, die der zu bewertenden Immobilie ähneln. Erfassung relevanter Merkmale wie Wohnfläche, Baujahr, Ausstattung und Lage. Berechnung des Durchschnittspreises der Vergleichsobjekte, beispielsweise über das arithmetische Mittel. Anwendung von Korrekturfaktoren, um individuelle Unterschiede zu berücksichtigen. Ableitung des endgültigen Vergleichswertes als Einschätzung des aktuellen Marktwerts. Vorteile und Einsatzbereiche Das Vergleichswertverfahren gilt als besonders zuverlässig, weil es direkt am tatsächlichen Marktgeschehen orientiert ist. Es wird bevorzugt bei Grundstücken, Eigentumswohnungen und anderen Objekten angewendet, für die ausreichend Vergleichspreise vorliegen. Die Methode eignet sich besonders für Immobilien, die sich in einem liquiden und transparenten Teilmarkt befinden. Formel zum Vergleichswertverfahren Die Grundformel lautet: Wert = Vergleichswert x Korrekturfaktor Der Vergleichswert ist der Durchschnittspreis ähnlicher Objekte, während der Korrekturfaktor relevante Unterschiede wie Ausstattung oder Lage berücksichtigt. Das Verfahren bietet einen praxisnahen und marktrelevanten Ansatz, der eine präzise Bestimmung des Verkehrswerts einer Immobilie ermöglicht, sofern genügend geeignete Vergleichswerte vorliegen.
ERTRAGSWERTVERFAHREN
Mieteinnahmen
Immobilienwert ermitteln: Im Ertragswertverfahren wird der Wert einer Immobilie aus den nachhaltig zu erwartenden Überschüssen (Erträgen) abgeleitet, die das Objekt im Laufe seiner Restnutzungsdauer realistisch erwirtschaften kann. Zuerst wird der Bodenwert eigenständig ermittelt, meist über das Vergleichswertverfahren. Danach werden die jährlichen Roherträge – insbesondere Mieteinnahmen – berechnet und um die nicht auf den Mieter umlegbaren Bewirtschaftungskosten bereinigt; hierzu zählen laufende Betriebskosten, Verwaltung, Instandhaltung und ein Rückstellungsposten für eventuelle Mietausfälle. Von dem so entstehenden Reinertrag wird die Bodenwertverzinsung – also der marktübliche Zins für den Grundstückswert – abgezogen. Der verbleibende Gebäudereinertrag wird über die Restnutzungsdauer des Gebäudes kapitalisiert. Dabei fließt der sogenannte Liegenschaftszins ein, der die Marktlage und das Mietausfallrisiko widerspiegelt. Das Ergebnis ist der Ertragswert der baulichen Anlagen, der mit dem Bodenwert zum Gesamtwert des bebauten Grundstücks addiert wird. Das Ertragswertverfahren liefert eine realistische, marktorientierte Bewertung für Investoren, Eigentümer und Banken und ist besonders relevant, wenn der Wert einer Immobilie durch Nutzung und zukünftige Einnahmen geprägt ist.
AUTOMATED VALUATION MODEL - AVM
Automatisiertes Bewertungsmodell
Wertrechner Immobilie: Das Automaten Evaluation Model (Automated Valuation Model, AVM) ist ein computerbasiertes, mathematisch-statistisches Verfahren zur automatisierten Immobilienbewertung. AVMs nutzen große Datenmengen vergangener Transaktionen, Objekt- und Standortmerkmale sowie Algorithmen wie Regressionsanalysen oder maschinelles Lernen, um den Marktwert einer Immobilie zu schätzen. Funktionsweise und Einsatzbereiche AVMs benötigen eine umfassende Immobiliendatenbasis, die unter anderem Verkaufspreise, Objektarten, Flächengrößen, Baujahre, Ausstattungsmerkmale und Lagefaktoren abbildet. Mithilfe mathematischer Modelle, insbesondere der hedonischen Preistheorie, werden die Preise einzelner Objektmerkmale statistisch quantifiziert und auf das Bewertungsobjekt übertragen. Moderne AVMs setzen Algorithmen wie lineare Regression, Cluster-Analyse oder Machine Learning ein, um auch komplexe Wechselwirkungen zwischen Merkmalen und Markteinflüssen abzubilden und so den statistisch wahrscheinlichsten Marktpreis objektiv zu berechnen. Die Bewertung erfolgt vollautomatisch und liefert – je nach Datenqualität – eine Marktwerteinschätzung mitsamt einer Einschätzung zur Prognosegenauigkeit. Vorteile und Einschränkungen AVMs bieten besonders für Banken, Versicherungen, Plattformen und Makler die Möglichkeit, große Objektmengen schnell, kosteneffizient und standardisiert zu bewerten. Die Genauigkeit hängt maßgeblich von der Datenvielfalt, der Aktualität und der Qualität der Vergleichswerte ab. Für Standardobjekte in datenreichen Märkten ist die Prognose besonders verlässlich, während Einzelfälle (Sonderobjekte, ländliche Regionen) oft weniger präzise bewertet werden. Das Automaten Evaluation Model ist damit einer der wichtigsten Bausteine moderner, digitaler Immobilienbewertung.
§ 246e BauGB
Bauturbo
Immobilienwert ermitteln: Der neue § 246e BauGB, bekannt als „Bauturbo“, ermöglicht ab 30. Oktober 2025 befristete Sonderregelungen zur Beschleunigung des Wohnungsbaus in Kommunen mit angespannten Wohnungsmärkten. Wichtigste Neuerung ist die Möglichkeit, unter bestimmten Bedingungen ohne vollständiges Bebauungsplanverfahren schneller neue Wohngebäude zu genehmigen – insbesondere Nachverdichtungen, Aufstockungen und Umnutzungen bestehender Bauten zu Wohnraum sind deutlich kurzfristiger möglich.
IMMOWERTV
Verfahren
Immobilienwert ermitteln: Die ImmoWertV (Immobilienwertermittlungsverordnung) ist das zentrale Regelwerk für die Bewertung von Grundstücken und Immobilien in Deutschland. Sie legt verbindlich fest, wie der Verkehrswert (auch Marktwert genannt) nach einheitlichen und nachvollziehbaren Kriterien ermittelt wird – dies betrifft private, amtliche und gerichtliche Bewertungen gleichermaßen. Die ImmoWertV schreibt vor, welche anerkannten Methoden zur Anwendung kommen dürfen: Vergleichswertverfahren, Ertragswertverfahren und Sachwertverfahren. Sie regelt zudem die erforderlichen Datenquellen wie Bodenrichtwerte, Marktanpassungsfaktoren oder Liegenschaftszinssätze und schreibt eine transparente Herleitung der Bewertungsergebnisse vor. Das Ziel ist eine gerechte, rechtssichere und marktnahe Immobilienbewertung nach bundesweit einheitlichen Standards.
KAUFPREISFAKTOR
Kenngröße
Immobilienwertrechner: Der Kaufpreisfaktor ist eine zentrale Kennzahl der Immobilienbewertung, die das Verhältnis zwischen Kaufpreis und jährlicher Nettokaltmiete einer Immobilie angibt. Er zeigt, wie viele Jahre es rein rechnerisch dauert, bis der gezahlte Kaufpreis durch die Mieteinnahmen amortisiert ist. Die Formel lautet: Kaufpreisfaktor = Kaufpreis / Jahresnettokaltmiete Je niedriger der Faktor, desto schneller rechnet sich das Investment und desto höher ist in der Regel die Mietrendite. Der Kaufpreisfaktor wird auch als Vervielfältiger oder Mietmultiplikator bezeichnet und eignet sich zur schnellen Vorauswahl und zum Vergleich von Anlageimmobilien, ersetzt aber keine detaillierte Wirtschaftlichkeitsprüfung.
SIMULATIONSBASIERTES VERFAHREN
Simulation
Immobilienwertrechner: Das simulationsbasierte Bewertungsverfahren ist eine moderne Methode der Immobilienbewertung, bei der zukünftige Zahlungsströme (Cashflows) und weitere wertbeeinflussende Parameter mithilfe von stochastischen Simulationen – meist Monte-Carlo-Algorithmen – abgebildet werden. Dabei werden für die wichtigsten Inputgrößen (z.B. Mieteinnahmen, Leerstände, Instandhaltungskosten) wahrscheinlichkeitsbasierte Szenarien berechnet. Das Ergebnis ist kein einzelner Wert, sondern eine Bandbreite potenzieller Immobilienwerte samt Eintrittswahrscheinlichkeit. Dadurch werden Risiken und Unsicherheiten realistisch modelliert. Häufige Anwendung findet das Verfahren bei komplexen Objekten und Portfolios, um Diversifikationseffekte und Risikoquantifizierung besser zu berücksichtigen. Das simulationsbasierte Verfahren eignet sich als Ergänzung zu herkömmlichen Wertermittlungsverfahren und unterstützt eine risikogerechte Entscheidungsfindung für Investoren und Gutachter.
RESIDUALVERFAHREN
Immobilienbewertung
Immobilienwert ermitteln: Das Residualverfahren ist ein spezielles Immobilienbewertungsverfahren, das vor allem bei der Projektentwicklung und Grundstücksbewertung Anwendung findet. Bei dieser Methode wird der Wert des Grundstücks oder Immobilienprojekts aus der Differenz zwischen dem erwarteten Verkaufserlös nach Fertigstellung und den voraussichtlichen Gesamtkosten des Projekts (inklusive Baukosten, Finanzierung und Entwicklergewinn) berechnet. Das Verfahren zeigt, wie viel für das Grundstück maximal gezahlt werden kann, damit das Projekt wirtschaftlich realisierbar ist. Das Residualverfahren ist besonders bei der Bewertung von Entwicklungsgrundstücken, Umnutzungen und Neubauprojekten relevant und bietet Investoren eine fundierte Entscheidungsbasis.
DISCOUNTED-CASH-FLOW
Cash-Flow-Bewertung
Immobilienwert ermitteln: Das Discounted-Cash-Flow-Verfahren (DCF) ist ein modernes Bewertungsverfahren, das den Wert einer Immobilie aus der Summe aller zukünftig erwarteten Zahlungsströme (Cashflows) berechnet, die auf den heutigen Bewertungsstichtag abgezinst werden. Hierbei werden zunächst alle zu erwartenden Einnahmen und Ausgaben der Immobilie für einen definierten Zeitraum prognostiziert. Anschließend werden diese Zahlungsströme mit einem risikoadäquaten Zinssatz auf den Barwert abgezinst. Am Ende wird ein Restwert (Terminal Value) für die Zeit nach der Detailprognose geschätzt und ebenfalls abgezinst. Das DCF-Verfahren bietet eine flexible und transparente Wertermittlung, die besonders bei größeren Anlageimmobilien, gewerblichen Objekten und in internationalen Kontexten Anwendung findet. Vorteile des DCF-Verfahrens sind insbesondere die detaillierte Abbildung von Chancen und Risiken, die individuelle Berücksichtigung objektspezifischer Faktoren sowie die langfristige Betrachtung des Investmentpotentials.
§ 34 BauGB - INNENBEREICH
Immobilienbewertung
Immobilienwert ermitteln: § 34 BauGB (Baugesetzbuch) regelt die planungsrechtliche Zulässigkeit von Bauvorhaben im sogenannten Innenbereich, also innerhalb bereits zusammenhängend bebauter Ortsteile ohne qualifizierten Bebauungsplan. Ein Bauvorhaben ist nach § 34 BauGB zulässig, wenn es sich nach Art und Maß der baulichen Nutzung, der Bauweise und der Grundstücksfläche, die überbaut werden soll, in die Eigenart der näheren Umgebung einfügt und die Erschließung gesichert ist. Dabei wird die vorhandene Bebauung in der Nachbarschaft als Maßstab genommen, um das Ortsbild und städtebauliche Spannungen zu schützen. § 34 BauGB ist von zentraler Bedeutung für die Bewertung und Entwicklung von Grundstücken im unbeplanten Innenbereich und stellt sicher, dass neue Vorhaben im Einklang mit der bestehenden Siedlungsstruktur stehen.
SATZUNG - § 10 BauGB
Bebauungsplan
Immobilienwert ermitteln: § 10 BauGB regelt den Beschluss, die Genehmigung und das Inkrafttreten eines Bebauungsplans durch die Gemeinde. Kernaussage Die Gemeinde beschließt den Bebauungsplan als Satzung. Bei bestimmten Bebauungsplänen ist eine Genehmigung der höheren Verwaltungsbehörde erforderlich. Inkrafttreten und Bekanntmachung Nach Beschluss oder erteilter Genehmigung ist der Bebauungsplan ortsüblich bekannt zu machen und samt Begründung sowie zusammenfassender Erklärung öffentlich auszulegen. Jeder hat Anspruch auf Auskunft zum Inhalt des Plans. Praktische Bedeutung § 10 BauGB sorgt dafür, dass die Öffentlichkeit über neue Bebauungspläne informiert wird und Einsicht in deren Inhalt nehmen kann. Der Bebauungsplan erhält durch die Satzung Rechtsnormcharakter und ist rechtlich verbindlich.
§ 35 BauGB - AUSSENBEREICH
Immobilienbewertung
Immobilienwert ermitteln: § 35 BauGB regelt das Bauen im Außenbereich und verfolgt dabei das Ziel, den Außenbereich grundsätzlich von Bebauung freizuhalten und Zersiedelung sowie negative Auswirkungen auf Natur, Landschaft und Infrastruktur zu vermeiden. Grundprinzipien Im Außenbereich – also außerhalb zusammenhängend bebauter Ortsteile und ohne rechtsgültigen Bebauungsplan – sind Bauvorhaben nur zulässig, wenn sie privilegiert sind (zum Beispiel der Land- oder Forstwirtschaft, bestimmten Infrastruktur- oder Energieprojekten dienen) und öffentliche Belange nicht entgegenstehen. Für nicht privilegierte Vorhaben gilt grundsätzlich ein Bauverbot; Ausnahmen sind möglich, wenn keine öffentlichen Belange (z. B. Natur-, Landschaftsschutz, Raumordnung) beeinträchtigt werden und die Erschließung gesichert ist. Besondere Ausnahmen Für privilegierte Vorhaben (z. B. Landwirtschaft, Energie, Infrastruktur) gelten gelockerte Anforderungen – solche Nutzungen sind typischerweise standortgebunden und nur im Außenbereich sinnvoll. Für bestehende, ältere oder erhaltenswerte Gebäude gibt es unter bestimmten Bedingungen Sonderregelungen, etwa für Umnutzung oder Ersatzbau. Gemeinden können mit Außenbereichssatzungen (§ 35 Abs. 6 BauGB) für bestimmte Bereiche zusätzliche Regelungen treffen, um z. B. vorhandene Siedlungsstrukturen zu sichern, ohne freie Flächen zu erschließen. Das zentrale Ziel von § 35 BauGB ist der Schutz des Außenbereichs vor ungeplanter Bebauung, die Sicherung der natürlichen Lebensgrundlagen und eine strenge Prüfung jeder Ausnahme.
SATZUNG - § 172 BauGB
Erhaltungssatzung
Immobilienwert ermitteln: Die Erhaltungssatzung gemäß § 172 BauGB ist ein kommunales Steuerungsinstrument, mit dem eine Gemeinde durch einen Bebauungsplan oder eine eigenständige Satzung bestimmte Gebiete festlegt, in denen der Rückbau, die Änderung, die Nutzungsänderung und – im Fall der Erhaltung der städtebaulichen Eigenart – auch die Errichtung baulicher Anlagen einer besonderen Genehmigung bedürfen. Schutzziele und Genehmigungserfordernisse Die Gemeinde kann eine Erhaltungssatzung erlassen: zur Erhaltung der städtebaulichen Eigenart eines Gebiets, das durch seine bauliche Gestalt geprägt wird (§ 172 Abs. 1 Nr. 1, Abs. 3 BauGB). Hier dürfen Maßnahmen dann versagt werden, wenn die baulichen Anlagen das Orts-, Stadt- oder Landschaftsbild prägen oder von besonderer geschichtlicher bzw. künstlerischer Bedeutung sind. Ebenso kann die Errichtung neuer baulicher Anlagen untersagt werden, wenn diese die städtebauliche Gestalt beeinträchtigen. zur Erhaltung der Zusammensetzung der Wohnbevölkerung (Milieuschutz) (§ 172 Abs. 1 Nr. 2, Abs. 4 BauGB): Hier kann die Genehmigung nur versagt werden, wenn aus besonderen städtebaulichen Gründen die Bevölkerung in ihrer aktuellen Zusammensetzung erhalten bleiben soll. Die Genehmigung muss in bestimmten Fällen (wie Modernisierung zur Erreichung zeitgemäßer Standards, energetische Anpassung, Nachlassregelungen oder Selbstnutzung durch Familienangehörige) zwingend erteilt werden. Auch die Begründung von Wohnungseigentum kann unter Genehmigungsvorbehalt gestellt werden, um z.B. Umwandlungen zu kontrollieren und Mieter zu schützen. bei städtebaulichen Umstrukturierungen (§ 172 Abs. 1 Nr. 3, Abs. 5 BauGB): Hier dient die Satzung dem Schutz sozialer Belange, beispielsweise durch die Aufstellung eines Sozialplans. Die Genehmigung kann in diesem Fall versagt werden, um einen sozial verträglichen Ablauf zu gewährleisten. Verfahren und Rechtsfolgen Nach Erlass und Bekanntmachung der Erhaltungssatzung gelten für Vorhaben im Satzungsgebiet die Genehmigungsvorschriften des BauGB entsprechend. Eigentümer können verpflichtet werden, bestimmte Nutzungen oder Eigentumsformen nur mit Zustimmung der Gemeinde vorzunehmen. Die Satzung ist ein wichtiges Instrument, um städtebauliche, soziale und historische Qualitäten eines Gebiets zu erhalten und gegen unerwünschte Veränderungen abzusichern.
§ 35 Abs. 6 BauGB
Außenbereichssatzung
Immobilienwertrechner: Eine Außenbereichssatzung nach § 35 Abs. 6 BauGB ermöglicht es Gemeinden, für bebaute Bereiche im Außenbereich, die nicht überwiegend landwirtschaftlich geprägt sind und in denen eine Wohnbebauung von einigem Gewicht vorliegt, durch Satzung zu bestimmen, dass Wohnzwecken dienenden Vorhaben nicht entgegengehalten werden kann, dass sie Flächen für Landwirtschaft oder Wald im Flächennutzungsplan widersprechen oder die Entstehung bzw. Verfestigung einer Splittersiedlung befürchten lassen§ 35 Abs. 6 BauGB. Diese Satzung erlaubt damit die geordnete Weiterentwicklung vorhandener Bebauung im Außenbereich, ohne dass das grundsätzliche Bauverbot des Außenbereichs vollständig aufgehoben wird. Sie kann auch auf kleinere Handwerks- und Gewerbebetriebe ausgeweitet werden. Voraussetzung für die Satzungsaufstellung ist, dass sie mit einer geordneten städtebaulichen Entwicklung vereinbar ist, keine Umweltverträglichkeitsprüfungspflicht ausgelöst wird und keine Schutzgüter des Umweltschutzes oder Sicherheitsbelange beeinträchtigt werden Voraussetzungen für die Aufstellung der Satzung. Bei der Aufstellung der Satzung sind die Vorschriften zur Öffentlichkeits- und Behördenbeteiligung anzuwenden, wodurch Transparenz und Mitwirkung gewährleistet werden Öffentlichkeits- und Behördenbeteiligung. Die Außenbereichssatzung ist somit ein Instrument, um ohne große Flächenerweiterungen und im Rahmen bestehender Bebauungsstrukturen Wohn- und Gewerbenutzungen im Außenbereich planungsrechtlich zu ermöglichen und zu steuern.
§ 173 BauGB - ÜBERNAHMEANSPRUCH
Entschädigung
Immobilienwertrechner: § 173 BauGB regelt das Genehmigungsverfahren und den Übernahmeanspruch bei Erhaltungssatzungen nach § 172 BauGB. Genehmigungsverfahren Die Genehmigung für Vorhaben im Erhaltungsgebiet (zum Beispiel Abriss, Änderung oder Nutzungsänderung von Gebäuden) wird grundsätzlich durch die Gemeinde erteilt. Ist zusätzlich eine baurechtliche Genehmigung erforderlich, geschieht dies durch die zuständige Baugenehmigungsbehörde im Einvernehmen mit der Gemeinde. Im Verfahren werden die Erhaltungsinteressen gemäß § 172 geprüft und die Betroffenen angehört, darunter auch Mieter oder Pächter, sofern es das Gesetz vorsieht. Übernahmeanspruch Wird einem Eigentümer im Erhaltungsgebiet eine genehmigungspflichtige Maßnahme nach § 172 Abs. 3 (z.B. Abriss bei besonderer städtebaulicher Bedeutung) versagt, kann dieser verlangen, dass die Gemeinde das Grundstück übernimmt – unter den in § 40 BauGB genannten Voraussetzungen. Dabei greifen die allgemeinen Entschädigungsregelungen des Baugesetzbuchs. Beteiligung und weitere Regelungen Vor der Entscheidung muss die Gemeinde die maßgeblichen Sachverhalte mit dem Eigentümer erörtern und in bestimmten Fällen weitere Nutzungsberechtigte wie Mieter oder Pächter anhören. Landesrechtliche Bestimmungen zum Denkmal- oder Ensembleschutz bleiben davon unberührt.
MIETPREISBREMSE
Bremse
Immobilienwertrechner: Die Mietpreisbremse ist ein gesetzliches Instrument, das die Mietpreise bei Neuvermietung von Wohnraum in angespannten Wohnungsmärkten begrenzt. Ziel und Wirkung Sie wurde eingeführt, um Mieter vor überhöhten Mieten zu schützen und den Anstieg der Mietpreise zu dämpfen, besonders in Städten mit starker Nachfrage nach Wohnraum. Bei der Wiedervermietung darf die verlangte Miete nicht mehr als 10 Prozent über der ortsüblichen Vergleichsmiete liegen. Anwendungsbereich Die Mietpreisbremse gilt nur in von den Bundesländern festgelegten Gebieten mit angespanntem Wohnungsmarkt. Neubauten und umfassend modernisierte Wohnungen sind davon ausgenommen. Rechtliche Grundlagen Die Mietpreisbremse wurde 2015 im Bürgerlichen Gesetzbuch (§ 556d BGB) verankert und ist rechtlich bestätigt. Seitdem kann sie von den Ländern für mehrere Jahre verlängert und auf weitere Regionen ausgedehnt werden. Kurzbeschreibung: Die Mietpreisbremse begrenzt bei Neuvermietung von Wohnungen in angespannten Mietmärkten die zulässige Miete auf maximal 10 Prozent über der ortsüblichen Vergleichsmiete, um Mieter vor überhöhten Mietforderungen zu schützen.
ZWECKENTFREMDUNGSVERBOT
Verbote
Immobilienwertrechner: Das Zweckentfremdungsverbot ist eine rechtliche Regelung, die die Nutzung von Wohnraum für andere Zwecke als das dauerhafte Wohnen untersagt und somit Wohnraum vor dem Verlust durch gewerbliche Nutzung, Leerstand, Abriss oder Umwandlung in Ferienwohnungen schützt. Ziel und Bedeutung Das Hauptziel des Zweckentfremdungsverbots ist der Erhalt von bestehendem Wohnraum und die Bekämpfung von Wohnungsmangel in Städten und Gemeinden. Durch das Verbot wird verhindert, dass Wohnungen dem Markt etwa durch Umwandlung in Büros, Praxen oder Ferienunterkünfte entzogen werden. Anwendungsbereich Eine Zweckentfremdung liegt vor, wenn Wohnraum länger leer steht (häufig ab drei bis sechs Monaten), dauerhaft gewerblich genutzt, baulich so verändert wird, dass Wohnen nicht mehr möglich ist, oder wenn eine Wohnung als Ferienwohnung vermietet wird. Verstöße können mit einer behördlichen Anordnung zur Rückführung des Wohnraums sowie mit Bußgeldern geahndet werden. Für eine zweckfremde Nutzung ist meist eine Genehmigung erforderlich, die nur ausnahmsweise bei überwiegendem öffentlichen oder privaten Interesse erteilt wird. Rechtliche Grundlagen Das Zweckentfremdungsverbot wird auf Landesebene beschlossen und durch gemeindliche Satzungen konkretisiert. Die genaue Ausgestaltung und die Ausnahmegenehmigungen variieren je nach Bundesland und Kommune. Kurzbeschreibung: Das Zweckentfremdungsverbot schützt Wohnraum vor einer nicht wohnungsbezogenen Nutzung und soll sicherstellen, dass Wohnungen nicht für andere Zwecke wie Gewerbe, Ferienvermietung oder durch längeren Leerstand dem Markt entzogen werden.
WOHNUNGSNOT
Wohnungspolitik
In Deutschland herrscht eine anhaltende Wohnungsnot, da das Angebot an bezahlbarem Wohnraum insbesondere in Städten und Ballungszentren weit hinter der hohen Nachfrage zurückbleibt. Gründe dafür sind gestiegene Baukosten, langwierige Genehmigungsverfahren und ein insgesamt zu geringes Neubauvolumen – 2025 liegt die Zahl der fertiggestellten Wohnungen deutlich unter dem bundesweiten Bedarf. Diese Wohnraumnachfrage hat direkte Auswirkungen auf den Immobilienwert: Sowohl Mieten als auch Kaufpreise steigen weiter an, sodass vor allem in gefragten Lagen Immobilienwerte stark zunehmen. Für viele Haushalte wird damit der Zugang zu bezahlbarem Wohnraum immer schwieriger, während Eigentümer von der Wertsteigerung ihrer Immobilien profitieren können. Die angespannten Marktverhältnisse führen dazu, dass der Begriff Immobilienwert untrennbar mit dem Thema Wohnungsnot verbunden ist.
INFLATION
Finanzpolitik
Inflation erhöht die Immobilienwerte spürbar, da mit steigendem Preisniveau auch die Kosten für Bau, Energie und Finanzierung steigen und sich dies bei der Immobilienwert-Ermittlung direkt bemerkbar macht. Besonders energieeffiziente Immobilien und Objekte in gefragten Lagen profitieren von dieser Entwicklung, während Immobilien in weniger attraktiven Regionen weniger stark an Wert gewinnen. Wer seinen Immobilienwert ermitteln möchte, sollte daher aktuelle Preistrends und die Inflation berücksichtigen.
ANTRAG AUF VORBESCHEID
Bauvoranfrage
Mit einem „Antrag auf Vorbescheid“ (Bauvoranfrage) prüfen Sie vorab, ob Ihr Bauvorhaben auf dem gewünschten Grundstück rechtlich zulässig ist und in welchem Umfang gebaut werden darf. Die zuständige Bauaufsichtsbehörde entscheidet dabei verbindlich über zentrale Fragen wie Bebaubarkeit, zulässige Nutzung oder Gebäudegröße und schafft so Planungssicherheit, bevor Sie in detaillierte Entwurfs- und Genehmigungsplanung investieren. Auf dieser Grundlage lässt sich die maximal erzielbare Wohnfläche rechtssicher abschätzen und damit der Immobilienwert ermitteln, weil sich aus der zulässigen Wohn- und Nutzfläche direkt die wirtschaftliche Nutzung und der mögliche Verkaufspreis ableiten lassen.
Bauantrag
Rechtssicherheit
Mit einem Bauantrag beantragen Sie bei der zuständigen Bauaufsichtsbehörde die Genehmigung für Ihr Bauvorhaben. Der Antrag bündelt alle relevanten Unterlagen – von Lageplan und Bauzeichnungen bis zur Baubeschreibung – und stellt sicher, dass Ihr Projekt den baurechtlichen Vorgaben entspricht. Die erteilte Baugenehmigung verbrieft eine rechtssichere Nutzungsmöglichkeit im genehmigten Umfang und schafft damit verbindliche Planungssicherheit für die Realisierung Ihres Bauvorhabens und des Immobilienwertes.

















